Relevé architectural existant : plans de l'existant pour transformer avec précision
Tout projet de transformation commence par une base fiable. Sans plans précis de l'existant, vous concevez à l'aveugle.

Pourquoi des plans de l'existant sont critiques
Concevoir sans connaître précisément l'existant, c'est prendre des risques majeurs. Des dimensions approximatives se transforment en erreurs coûteuses sur chantier. Des murs porteurs non identifiés compromettent vos projets. Des hauteurs sous plafond mal mesurées rendent vos plans inexploitables.
Un relevé architectural précis est la fondation de tout projet de rénovation, d'agrandissement ou de réhabilitation. C'est votre assurance contre les surprises coûteuses et les retards de chantier.
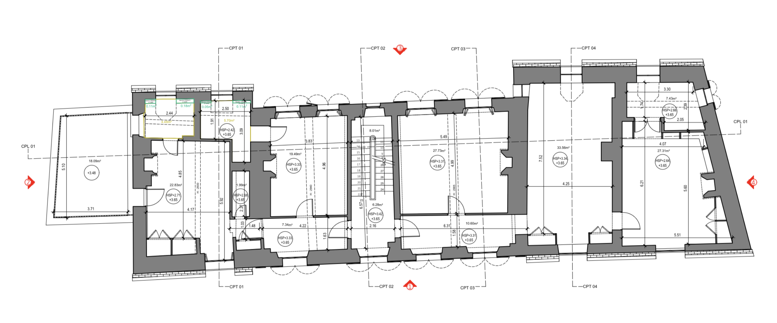
Ce que nous livrons concrètement
- •Plans de masse : Vue d'ensemble de chaque niveau avec toutes les cotes, épaisseurs de murs, et emplacements des ouvertures
- •Élévations : Vues extérieures et intérieures avec hauteurs, niveaux, et détails architecturaux
- •Coupes : Sections verticales révélant les structures, hauteurs sous plafond, et niveaux de planchers
- •Fichiers CAO : Formats DWG, PDF haute résolution, et compatibilité avec Revit, ArchiCAD, SketchUp
- •Documentation complète : Cotes précises, légendes, et annotations professionnelles
Les bénéfices pour votre projet
Évitez les erreurs coûteuses
Des mesures précises à ±10mm vous protègent contre les surprises sur chantier. Chaque dimension est vérifiée et validée pour garantir la fiabilité de vos plans de rénovation.
Intégration dans votre workflow
Formats compatibles avec tous les logiciels de CAO. Intégrez directement nos plans dans votre workflow de conception sans conversion fastidieuse ni perte de données.
Gain de temps précieux
Ne perdez plus de temps sur des relevés manuels fastidieux et imprécis. Recevez vos plans complets en moins de 14 jours et démarrez votre conception immédiatement.
Conception optimisée dès le départ
Concevez en toute confiance avec une documentation précise. Identifiez les contraintes structurelles et les opportunités dès le départ pour optimiser vos projets de transformation.
Notre méthode en 4 étapes
Demande de devis
Contactez-nous avec les détails de votre projet. Nous vous proposons une offre gratuite sous 24h adaptée à vos besoins.
Visite sur site
Notre équipe se déplace avec les équipements de relevé laser et photogrammétrie pour capturer toutes les données nécessaires.
Traitement et modélisation
Nos experts transforment les données brutes en plans détaillés, vérifiés et annotés selon les standards professionnels.
Livraison
Recevez vos plans dans les formats souhaités en moins de 14 jours, prêts à être intégrés dans votre projet de conception.
Cas d'usage : quand avez-vous besoin de plans de l'existant ?
Rénovation d'appartement ou maison
Avant de transformer un espace, vous devez connaître précisément les dimensions, les murs porteurs, et les contraintes structurelles. Nos plans vous permettent de concevoir en toute sécurité.
Agrandissement ou extension
Pour intégrer harmonieusement une extension, vous avez besoin des élévations et coupes précises de l'existant. Nos relevés garantissent une jonction parfaite.
Réhabilitation de bureaux
Réorganiser un espace de travail nécessite une connaissance précise des volumes et contraintes. Nos plans facilitent la conception de nouveaux agencements.
Demande de permis de construire
Les autorités exigent souvent des plans de l'existant pour valider votre projet. Nos documents répondent aux exigences administratives.
Pourquoi choisir OPUS plutôt qu'un géomètre classique ?
Engagement sur les délais de livraison
Nous nous engageons sur les délais de livraison et respectons nos engagements. Nous livrons 95% de nos ressources en moins de 30 jours après les relevés sur site. Votre projet avance sans attendre, avec la garantie d'une livraison dans les temps convenus.
Technologies de pointe pour une précision maximale
Nous combinons relevé laser et photogrammétrie pour garantir une précision de ±10mm, supérieure aux méthodes traditionnelles. Nos équipements professionnels capturent chaque détail architectural, même dans les espaces complexes ou difficiles d'accès.
Garantie de précision : reprise gratuite si écart constaté
Nous garantissons la précision de nos relevés. Si vous constatez un écart significatif par rapport aux mesures réelles sur chantier, nous reprenons le relevé gratuitement. Cette garantie témoigne de notre confiance en la qualité de notre travail.
Expérience éprouvée sur des centaines de projets
Nous avons réalisé plus de 120 relevés architecturaux pour des projets de rénovation, d'agrandissement et de réhabilitation. Notre expérience couvre tous types de bâtiments : appartements, maisons, bureaux, monuments historiques. Nous connaissons les pièges à éviter et les détails qui font la différence.
Relevés architecturaux réalisés
Précision garantie sur chaque relevé
Délai de livraison moyen
Questions fréquentes
Recevez vos plans de l'existant sous 30 jours
Obtenez un devis gratuit sous 24h pour votre relevé architectural